銷售總監:15929961555
公司地址:西安市北三環大明宮建材市場玻璃型材區23排3-4號
日本松下新銳帝H3自動門安裝調試說明書
彩运网 日本松下新銳帝H3自動門的施工請委托指定的經銷商或專業施工單位。非專業人員進行施工會有危險。根據有關電器施工法令、法規,務必由“專業人員”進行施工。為做好維護保養工作,務必保管好本說明書。

有關安全注意事項
用戶務必準守的內容和種類用以下圖示表示和說明
彩运网 圖片 :處理失誤時,會產生令使用者死亡或負傷的可能
圖片:處理失誤時,會產生使用者受到傷害或者發生物質上損失的可能性
彩运网 圖片:此圖表示不得進行的“禁止”內容。
圖片:此圖表示必須的“強制性”內容。
警告:
1、施工和調整請務必按照施工說明書進行。
彩运网 2、施工作業時請務讓同行者通過自動門或靠近作業現場。如工具或部件不慎墜落,會造成人員傷害。
3、請勿改造零部件。會造成火災、觸電、墜落等事故。
彩运网 4、請勿使用規定電壓、頻率以外的電源。會造成火災、觸電等事故。
彩运网 5、請設置、調整傳感器、使門的開口部位充分進入檢測范圍,不出現死角。如檢測范圍過小或留死角,會使通行被門沖撞或夾擊,造成傷害。

彩运网 萬一上述檢測范圍無法確保,為保證通行者通過檢測范圍。請務必通過放置盆栽植物等方法限制通行,并向業主說明情況。如有不慎,會時通行者被門沖撞、夾擊,造成傷害。
注意:
1、請勿將門使用與潮濕、有震動、有腐蝕氣體產生的場所。
彩运网 2、確保開門后有30MM以上的空間。會造成手指被門扇和立柱夾住,導致傷害。
3、門在動作時,請勿切斷電源。會造成人員傷害。
4、請將不干膠方向粘貼板牢固地貼與門扇上。如不貼,會使用通行者注意不到門扇,造成傷害
5、請勿將電器容量超過DC24V 300MA的器具安裝到選購件的機能擴張裝置上。會引起火災。
注意其他事項
1、無使用超過規定重量的門扇,否則會造成故障。
2、位便于能夠確認發動機裝置的型號,請將包裝箱中附帶的產品標示貼于發動機箱等上面。
3、如選擇使用電池裝置機能。
彩运网 ①、請在充電24小時以后再使用,連接機能擴展裝置,使發動機裝置的主電源通電就開始充電。
②、電池的壽命在環境溫度0-40℃時為2-3年。如環境超過0-40℃,則電池壽命縮短。
彩运网 ③、如充電24小時后,停電時任無法開啟或關閉動作,則表示電池已到壽命。立即更換電池。
④、沒半年對電池進行一次定期檢查
4、如選擇使用電磁鎖時。請勿使用與環境溫度0-40℃以外的環境中。容易造成動作不順暢。
5、本說明書中的圖片質料僅供產考,請以實物為準,產品如有變更,恕不另行通知。
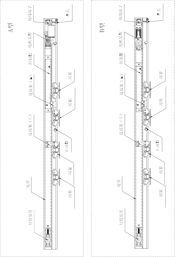
發動機箱裝置部件安裝配制圖

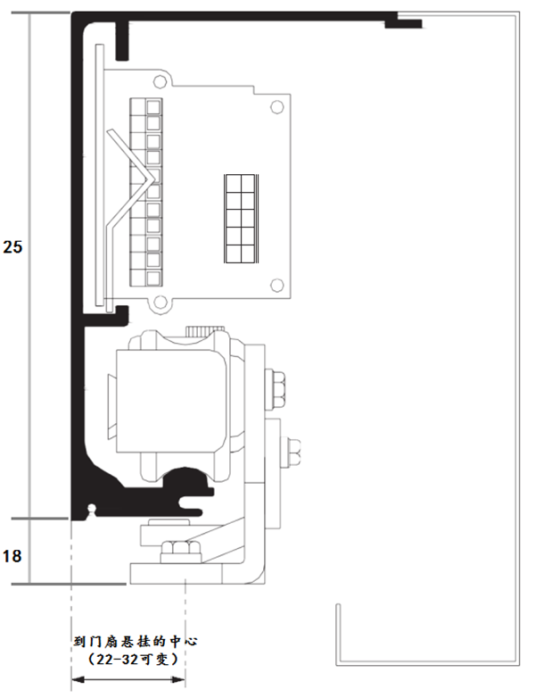
發動機箱、吊架截面圖
截面圖
注意:本斷面圖并非1:1的比例。

產品特點
系列特點
1、微電腦智能控制和先進的機械制造。
2、自動調整門扇運行狀態,必要時可人工調整。
彩运网 3、開、閉平順,噪音低。
4、直流無刷電機,使用壽命長。
5、雙門互鎖和電子鎖功能,支持多種門禁系統。
6、輕重兩用,承載能力大。
7、安裝簡便。
技術指標
單開門參數:
門體形式:單開門
門扇重量:最大150KG
門扇寬度:DW=750MM-1600MM
凈空結構寬度:DW=1500MM-3200MM
彩运网 安裝方式:表面安裝
彩运网 電源電壓:AC220V,50HZ
彩运网 開門運行速度:15-46CM/S(可調)
關門運行速度:13-46CM/S(可調)
彩运网 開放時間:0-8秒
手動推力:<40N
電機:DC24V,65W(直流無刷)
工作環境溫度:-20℃ - +50℃
雙開門參數:
門體形式:雙開門
門扇重量:最大2*125KG
門扇寬度:DW=650MM-1250MM
彩运网 凈空結構寬度:DW=2600MM-5000MM
安裝方式:表面安裝
彩运网 電源電壓:AC220V,50HZ
開門運行速度:15-46CM/S(可調)
彩运网 關門運行速度:13-46CM/S(可調)
開放時間:0-8秒
手動推力:<50N
電機:DC24V,65W(直流無刷)
工作環境溫度:-20℃ - +50℃
彩运网 日本松下新銳帝H3自動門裝箱零部件一覽表
主機裝置零部件

裝箱零部件一覽表
1、安裝
彩运网 江導軌安裝在離地坪DH+25MM的高度(以導軌下面計)。
①、在導軌、鋼結構(或墻面)上鉆孔,以便安裝導軌。
彩运网 ②、用水平儀測定導軌兩端水平度。
③、將導軌兩端暫時各用一只螺釘固定到鋼結構上(或墻面)上。
④、再次確定校正水平后,用螺釘(或M8膨脹栓)導軌最終固定在鋼結構體(或墻面)。
注意
①、發動機箱一定要水平。
②、活動門扇高度為DH。
③、發動機箱上方凈空高度大于50MM。
④、沉頭螺釘平頭請不要出頭,以免造成動作不良。

電機裝置的安裝
1、將帶連接器的導線放到電機前面。
彩运网 2、將安裝配件確實嵌入發動機箱的上部溝槽中。
彩运网 3、接著將其嵌入下部溝槽中。
4、將電機裝置移動到發動機箱的右端。
5、擰緊安裝螺栓。
6、將帶連接器的導線穿過電機裝置的上面并出左側,注意不要使導線下垂

控制器的安裝
彩运网 1、將控制器裝置確實嵌入上部溝槽內。
2、確實嵌入下部溝槽中。
3、將電機裝置,端子臺裝置的軟線移動至能連接的位置。
4、擰緊安裝螺栓。
注意:以上1.2如有不慎,會造成掉落
尾輪的安裝
1、將尾輪裝置的安裝配件確實嵌入發動機箱上部的溝槽中。
彩运网 2、并且確實嵌入下部溝槽內。
3、用固定螺栓將尾輪裝置輕輕的暫時固定,使之能稍微移動。
吊架的安裝
彩运网 吊架的安裝追位置(如圖)
單開式(有框門)
圖片
單開式(無框門)
圖片
雙開式(有框門)
圖片
雙開式(無框門)
圖片
A型:
彩运网 1、如果活動門扇和固定門扇的寬度接近,L=3000。
2、如果門扇上安裝吊架不能滿足L=300,可選擇使用125B型。
3、如果活動門門扇小于固定門扇寬度L≥190可變。
B型:
1、L=190
注意:
彩运网 一、安裝時應使吊架裝置的滑輪中心與門扇完全平行狀態。如不平行,會縮短滑輪壽命。
二、請勿碰撞發動機箱內部零件及導軌。否則,會造成零件發生故障、滑輪壽命減短,產生噪音等異常。
門扇的安裝與調整
如左圖,如果門扇無法水平地安裝時可將門扇吊掛著進行安裝調整。
1、松開固定吊架用的螺母。
彩运网 2、利用調整螺栓進行高度調整。順時針方向旋轉,門上升。逆時針方向旋轉,門下降。
3、擰緊固定吊架用的螺母。
彩运网 4、在確認了與發動機箱下部間的間隙后將吊架防脫裝置確實安裝上去間隙為0.5MM。
彩运网 5、確認行走時的阻力。
單開式
圖片
雙開式
圖片
門扇的安裝與調整
如門扇移動滯重確認以下項目,以恢復正常。
確認事項:
彩运网 1、吊架裝置是否垂直安裝在門扇上
彩运网 2、止擺器與門扇底部之間是否有摩擦。
3門扇與門框之間是否有摩擦。
4吊架中防脫裝置和發動機箱之間是否有摩擦。
圖片
圖片
皮帶張緊力的調整
1、松開4只緊固螺栓,使尾輪連同調節板拉至右端。
2、將全部尾輪部件向左拉,是皮帶緊繃后,擰緊四個壓板螺栓。
3、沿順時針方向轉動張緊力調節螺栓,使張緊板產生左移,皮帶張緊力逐漸增大,調整皮帶張緊力至適度,在擰緊四個緊固螺栓。
圖片
皮帶經過一段時期使用后,會產生少許伸長現象,此時應對皮帶張緊力重新調整,重復動作1-3步驟。
彩运网 皮帶固定裝置的安裝位置(單開式)
以A型為例:
圖片
皮帶固定裝置的安裝位置(雙開式)
以A型為例:
圖片
電器連接
彩运网 控制器、電機裝置、連接端子裝置的連接。
注意:所有接線操作均應在斷電情況下進行。
圖片
圖片
彩运网 控制器與接線端子的介紹
圖片
傳感器的連接
圖片
門禁刷卡器(選配件)的連接
彩运网 1、所有接線操作應在斷電情況下進行。
2、接門禁刷卡器要注意正負極。
彩运网 3、這時要接無源輸出的刷卡器,如果是有源輸出刷卡器請改為無源輸出。最好請從本公司購買。
圖片
注意:如果門禁功率大于2.4W需要從外界提供12V直流電源。切不可從自動門控制器器系統取12V電源,因為那樣負載過大會導致控制器燒壞。
雙門互鎖連接
圖片
彩运网 安全光線(選配件)的連接
彩运网 注意:所有接線操作均須在斷電情況下才能進行
圖片
后背電源與電鎖(選配件)的連接
注意:所有接線操作需在斷開電源下進行。電鎖工作電流小于200MA 啟動電流小于800MA,接后背電源時注意正負極,具體操作如下圖
圖片
遙控器(選配件)的安裝
1、按圖示方向插到控制器端板上。
彩运网 2注意插頭的方向。
注意:連接不良會造成動作不順暢。
圖片
遙控器與控制器對碼說明
1、清空:長按對碼按鈕,直到聽不到蜂鳴器聲音,松開按鈕
2、對碼:按對碼按鈕,蜂鳴器鳴叫。這時按下遙控器上任意按鍵,蜂鳴器停止鳴叫,說明對碼成功。使用遙控器時,蜂鳴器會鳴叫2秒。
彩运网 3、注意:使用遙控器時,蜂鳴器“嘟嘟”兩下,說明遙控器和控制器沒有對碼成功,請重復第2項。
注意:所有接線操作需在斷開電源進行。
在通電前將遙控器插在遙控器專用插座上,注意方向。圖片
彩运网 A:鎖門 B:常開 C:半開 D:正常
李恩吉不良會造成運作不良。
動作過程說明
彩运网 1、接通電源、本系統從門的開門狀態進行初始程序,門朝關門方向低俗運行,遇到關門止動器,門停止運行。
2、正常運行轉時門扇按下規律運行。
圖片
注意:當使用電子鎖時,多功能控制器(選購件)可選擇多種設定方式,根據不同需要選擇出入方式。
彩运网 開啟和關閉參數的調整
彩运网 控制裝置各部分的名稱和功能
圖片
TEST:按一下完成一次開門動作,用于安裝時調節各個參數。
彩运网 DRP:通電時改燈長亮。
A:單開門:置左是左開方向,置右是右開方向。雙開門:置右。
B:左置時:門打開門后處常開狀態,需再次給信號才會關門。有置時,自動關門。
D:逆時針旋轉減小開門速度,順時針增大。
E:逆時針旋轉減小開門緩行距離,順時針增大。
F:逆時針旋轉減小關門速度,順時針增大。
彩运网 G:逆時針旋轉減小關門緩行速度,順時針增大。
H:逆時針旋轉減小緩行速度,順時針增大。
彩运网 I:逆時針旋轉減小開門延時,順時針增大。
調節步驟
(調節步驟,用手開關門數次,確認門能夠平滑順暢地開啟閉合。)
1、A設定左右切換開關
圖片
彩运网 從內測看,根據門的開啟方向,設定左或右,為雙開時,開關設定左右。
2、B設定點開點關,根據用戶需要將開關撥到左邊懸著電開關,門打開后不會自動關門,需要在此給予信號,門才會關閉。
彩运网 3、將門推至關門位置,初步設定:
建議初始慢速、開門速度、關門速度均在中間位置,開門緩行距離、關門緩行距離偏大位置,否則可能會發生撞門現象。
彩运网 4、接通電源,按下空氣裝置的測試按鈕,門體慢速開門,遇止動器停止后關門,門行程掃描初始化。
圖片
按下控制裝置的測試按鈕,再關門的同事,調節緩行速度。
注意:當使用電插鎖時請解鎖后在測試按鈕。
注意:慢速調節應使門在開、關時均勻流暢,并且不過重為佳。
彩运网 注意:每次斷電時間應大于10秒。
彩运网 5、門閉合時,根據需要調節關門速度,關門緩行距離。
彩运网 注意:當使用電插鎖時,請解鎖后使用測試按鈕。
注意:請在確認門的周圍沒有 行人后,進行調節。否則容易受傷。
圖片
1、調節開門緩行距離,將其設定為10CM。
注意:調節務必請慢慢進行,如大幅度旋轉旋鈕,會造成人員或門體損傷。
2、調節開門速度。
3、確認門體的開門速度后,如有必要再調節開門緩行距離。
注意:勿在門開關過程中進行調節,請慢慢進行調節,如有大幅度旋轉旋鈕,會造成人員或門體傷害。
圖片
按下控制裝置的測試按鈕,在開關門的同時,調節門開放時間。
注意:當使用電插鎖時請解鎖后用測試按鈕。
故障排除




天卓微信公眾號
銷售總監微信