銷售總監:15929961555
公司地址:西安市北三環大明宮建材市場玻璃型材區23排3-4號

松下地埋式平開門機(150KG)-電動地彈簧NSPDS1150
產品參數
產品型號NSPDS1150
彩运网 電機型式無限直流電機36V
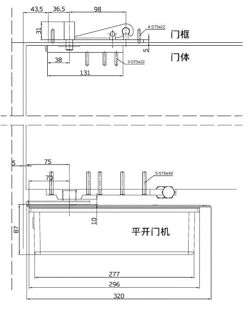
機組尺寸(帶飾板mm)309x152×87
彩运网 機組尺寸(不帶飾板mm)296×132×84
彩运网 機組重量(kg)8.5
軸距(mm)74
彩运网 最大門重(kg)150
彩运网 最大輸出扭矩(Nm)70
彩运网 最大功率(W)35
防護等級IP67
彩运网 待機功率(W)s6
彩运网 環境工作溫度(C)-20°C+50°C
彩运网 工作噪聲(dB)<60
彩运网 工作環境200V±10%,55Hz

強力防水,防水等級達到IP67,表現更專業。
遙控感應,多種模式一鍵操作,15米超長感應距離。
超高耐久,經歷50萬次開閉壽命試驗,取得國家檢測報告。
彩运网 場景靈活,可滿足各種商業樓,宇住宅出入需求。

松下地埋式平開門機產品細節
1.通用標準軸頭
松下地埋式平開門機軸頭采用通用標準軸頭,無誤差,通用性高,軸頭采用高強度合金鋼材質,更耐用。
2.不銹鋼蓋板
松下地埋式平開門機使用高級不銹鋼材質,日曬雨淋都不會出現生銹的情況。有效的保證產品的美觀和使用壽命。出廠時保證蓋板的完美型,為蓋板貼上一層防塵膜。
3.防塵墊裝飾蓋
抗老化防塵墊,有效減少灰塵進入機芯,延長機芯壽命。裝飾圈起到裝飾美觀的作用,同時防止灰塵掉落機芯內部。
4.品牌保障
日本松下品牌門控五金,質量有保障。為客戶提供優質的、信賴的、高效的服務態度,松下產品官方質保時間為一年。

安全功能
1.防夾防碰
選配安全光幕傳感器,保障通行人員安全。關開門過程中,如探測到行人阻擋開門,立刻觸發安全傳感器,反彈開門或停止轉動。保障通行人員自由出入安全
2.電鎖保護
彩运网 選配電磁鎖或電插鎖,斷電后門體自動打開,便于火災人員疏散。也可設置成斷電鎖門,以備夜間斷電時門體上鎖,保障室內財產安全。可適應不同類型鎖。保障室內財產安全,滿足火災人員疏散。
智能控制
1.參數控制
彩运网 門體在開啟和關閉過程中,分為三個階段:啟動過程一中間過程一緩沖過程。每段過程的運行速度可通過系統單獨設定。可根據需求獨立靈活設置開關速度快速啟閉緩動設置。
2.雙門聯動
雙門系統中,可實現單扇門開閉模式,通行人少時,達到節能效果;單控制器雙電機一拖二控制,可實現同步控制,雙門聯動,只開單門、半開門以及不同開門速度、角度。可根據需求靈活設置開門速度及角度單門通行雙門聯動。




天卓微信公眾號
銷售總監微信